宅男666视频社区,宅男在线观看,宅男视频污污,午夜宅男在线观看

    技术文摘

    600mm高方形仿云石墙壁灯规格参数和生产图纸
    当前位置:首页 >> 服务与支持 >> 技术文摘

    600mm高方形仿云石墙壁灯规格参数和生产图纸

    来源:东莞宅男666视频社区照明 发布日期:2019.08.02 阅读:2878

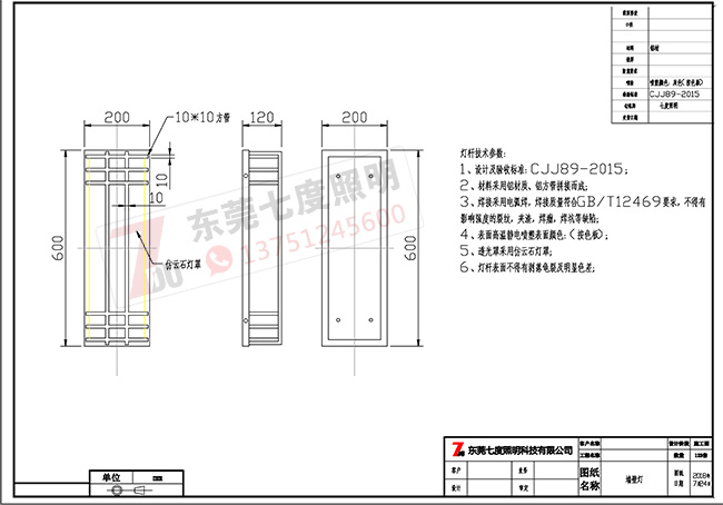
    方形仿云石墙壁灯生产图纸:
    园区方形仿云石墙壁灯生产图纸

    600mm高方形仿云石墙壁灯规格参数介绍:
    灯体材质:铝材+仿云石灯罩;
    外观颜色:深灰色;
    整体尺寸:L600*W200*H120mm;
    光源:2*10W LED光源;
    光色:暖光 3000k;
    输入电压:AC220V 50Hz;
    生产工艺:灯体底板采用铝板通过激光切割折弯和焊接工艺,灯体框采用10*10mm方形铝管拼接而成,表面精工打磨处理后高温静电喷塑

    * 以上规格由客户要求定制,灯体大小、外观颜色均可根据要求定制生产;

    600mm高方形仿云石墙壁灯成品实拍图片:
    600mm高方形仿云石墙壁灯成品实拍图片


    东莞宅男666视频社区照明-专业方形仿云石墙壁灯非标定制生产厂家,以品质决定未来、服务驱动发展的核心理念,为您提供优质的工程照明产品和服务,方形仿云石墙壁灯非标定制热线:18898707565


    将《600mm高方形仿云石墙壁灯规格参数和生产图纸》分享到:
  1. 资料下载
  2. 照明问答
  3. 文章中提到过的产品:
    更多相关产品: 墙壁灯
    东莞宅男666视频社区照明微信公众号东莞宅男666视频社区照明-业务咨询微信 东莞宅男666视频社区照明科技有限公司
  4. 地址:东莞市南城区石鼓花园南路1号
    电话:0769-86009547
    手机:18898707565 15916777606
    业务QQ:3533171821 1987932693
    邮箱:7du@lady1998.com
  5. 东莞宅男666视频社区照明科技有限公司(lady1998.com)©2010-2023 版权所有 粤ICP备94238524号-1  
    网站地图